ПЭ 63.12
Характеристики изделия:
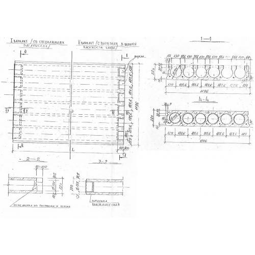
| Параметр | Значение |
|---|---|
| длина | 6280 мм |
| ширина | 1196 мм |
| высота | 220 мм |
| вес | 2160 кг |
| Шифр | СК 1223 |
Цена:
Рассчитать стоимостьПЭ 63.12 Плиты многопустотные безопалубочного формования по Шифру СК 1223.
| Параметр | Значение |
|---|---|
| длина | 6280 мм |
| ширина | 1196 мм |
| высота | 220 мм |
| вес | 2160 кг |
| Шифр | СК 1223 |
ПЭ 63.12 Плиты многопустотные безопалубочного формования по Шифру СК 1223.
