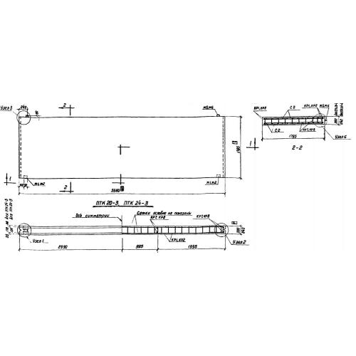
ПТК 24

Чертеж изделия:
Характеристики изделия:
ПараметрЗначение
длина5980 мм
ширина1785 мм
высота240 мм
вес2500 кг
серияСТ 02-18

ПТК 24 Панели керамзитбетонные трехслойные по серии СТ 02-18.