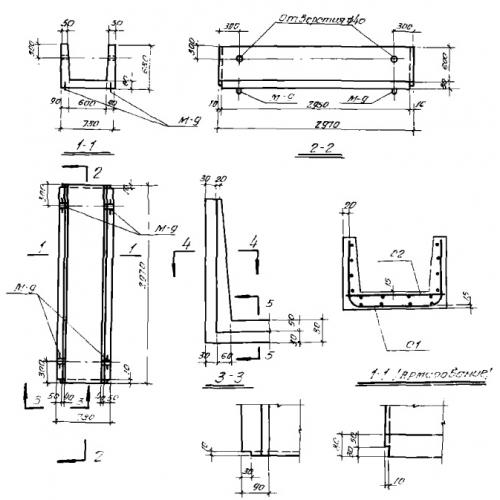
Л 3 лотки

Чертеж изделия:
Характеристики изделия:
ПараметрЗначение
длина2970 мм
ширина780 мм
высота680 мм
масса1070 кг
нормативный документСерия ИС 01-04

Л 3   Железобетонные лотки  по Серии ИС 01-04.