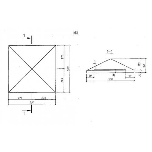
КБ 1 крышка бетонная

Чертеж изделия:
Характеристики изделия:
ПараметрЗначение
длина550 мм
ширина550 мм
высота165 мм
масса50 кг
нормативный документСерия Б 3.300.1-5.04

КБ 1 Крышки бетонные по Серии Б 3.300.1-5.04.