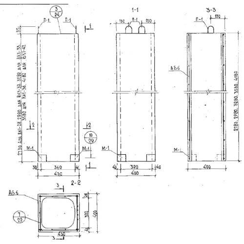
ВК 1-42 венткороб
Характеристики изделия:
| Параметр | Значение |
|---|---|
| длина | 430 мм |
| ширина | 400 мм |
| высота | 4180 мм |
| масса | 750 кг |
| нормативный документ | Серия Б1.134.1-7 |
Цена:
Рассчитать стоимостьВК 1-42 Венткороба по Серии Б1.134.1-7.
| Параметр | Значение |
|---|---|
| длина | 430 мм |
| ширина | 400 мм |
| высота | 4180 мм |
| масса | 750 кг |
| нормативный документ | Серия Б1.134.1-7 |
ВК 1-42 Венткороба по Серии Б1.134.1-7.
