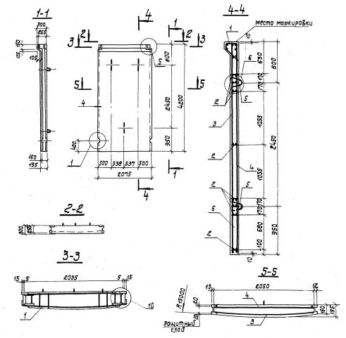
ПСЦ 3-42-1

Чертеж изделия:
Характеристики изделия:
ПараметрЗначение
Длина2075 мм
Ширина300 мм
Высота4200 мм
Масса4100 кг
Нормативный документСерия 3.900.1-11

ПСЦ 3-42-1  по Серии 3.900.1-11 

Панель стеновая для цилиндрических сооружений с радиусом кривизны 15 м; высотой 4,2 м; первого типа по нагрузке.