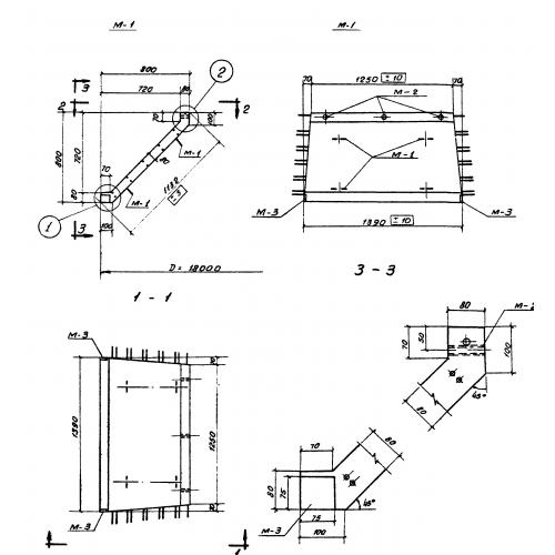
ЛУ 2-15

Чертеж изделия:
Характеристики изделия:
ПараметрЗначение
длина1390 мм
ширина800 мм
высота800 мм
вес300 кг
серия3.900-2

ЛУ 2-15 Лотки угловые по серии 3.900-2.