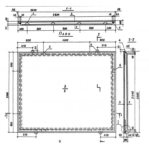
ПКу 30-25
Характеристики изделия:
| Параметр | Значение |
|---|---|
| длина | 3000 мм |
| ширина | 2500 мм |
| высота | 100 мм |
| масса | 1800 кг |
| нормативный документ | Серия 3.820.1-70 |
Цена:
Рассчитать стоимостьПКу 30-25 Плиты усиленные для крепления откосов мелиоративных каналов по Серии 3.820.1-70.
