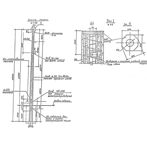
СВ 115

Чертеж изделия:
Характеристики изделия:
ПараметрЗначение
длина11500 мм
ширина430 мм
высота430 мм
вес2500 кг
серия3.507 КЛ-10

СВ 115 Стойки вибрированные по серии 3.507 КЛ-10.