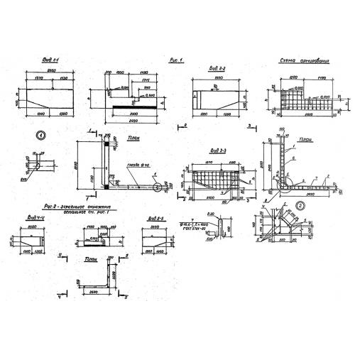
БШ 27-5
Характеристики изделия:
| Параметр | Значение |
|---|---|
| длина | 2690 мм |
| ширина | 2500 мм |
| высота | 920 мм |
| вес | 1950 кг |
| серия | 3.503.1-79 |
Цена:
Рассчитать стоимостьБШ 27-5 Блоки шкафных стенок по серии 3.503.1-79.
| Параметр | Значение |
|---|---|
| длина | 2690 мм |
| ширина | 2500 мм |
| высота | 920 мм |
| вес | 1950 кг |
| серия | 3.503.1-79 |
БШ 27-5 Блоки шкафных стенок по серии 3.503.1-79.
