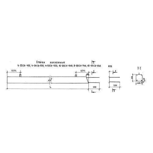
СН-640

Чертеж изделия:
Характеристики изделия:
ПараметрЗначение
длина6900 мм
ширина350 мм
высота350 мм
масса2000 кг
нормативный документСерия 3.503-23

СН-640  Стойки  наклонные Серия 3.503-23.