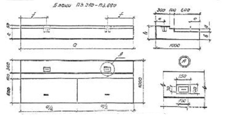
П 3 Блоки перекрытия оголовочной части трубы
Характеристики изделия:
| Параметр | Значение |
|---|---|
| длина | 4600 мм |
| ширина | 1000 мм |
| высота | 430 мм |
| масса | 4200 кг |
| нормативный документ | Серия 3.501.1-179.94 |
Цена:
Рассчитать стоимостьП 3 Блоки перекрытий оголовочной части труб по Серии 3.501.1-179.94.