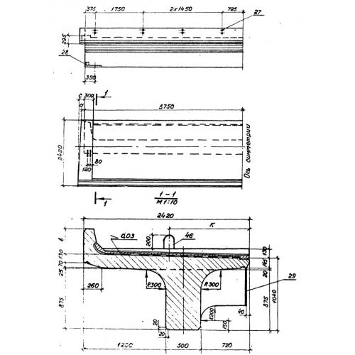
Б 115

Чертеж изделия:
Характеристики изделия:
ПараметрЗначение
длина11500 мм
ширина2420 мм
высота1450 мм
вес31700 кг
Серия3.501.1-146

Б 115 Балки ребристые пролетных строений по Серии 3.501.1-146.