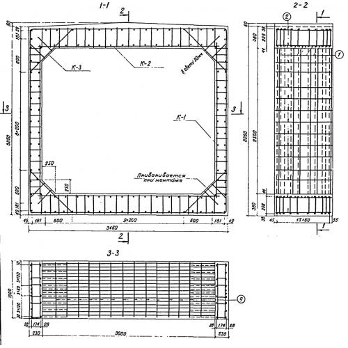
Блок №93

Чертеж изделия:
Характеристики изделия:
ПараметрЗначение
длина3310 мм
ширина3460 мм
высота1000 мм
вес10000 кг
серия3.501-104

Блок №93 Звенья прямоугольной трубы по серии 3.501-104.