ПЖС

Чертеж изделия:
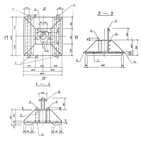
Характеристики изделия:
ПараметрЗначение
длина2000 мм
ширина2000 мм
высота800 мм
масса3900 кг
нормативный документСерия 3.407.9-180

ПЖС Подножники Серия 3.407.9-180.