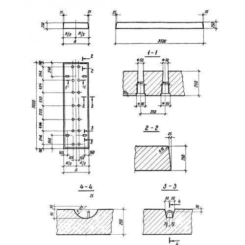
ПФ 35.10

Чертеж изделия:
Характеристики изделия:
ПараметрЗначение
длина3500 мм
ширина1000 мм
высота250 мм
вес2190 кг
серия3.407.1-148

ПФ 35.10 Плиты фундаментные по серии 3.407.1-148.