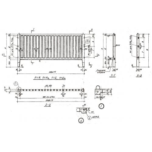
П 1 панель ограждения

Чертеж изделия:
Характеристики изделия:
ПараметрЗначение
длина3980 мм
ширина120 мм
высота1550 мм
масса470 кг
нормативный документСерия 3.017-1

П 1 Панели оград Серия 3.017-1.