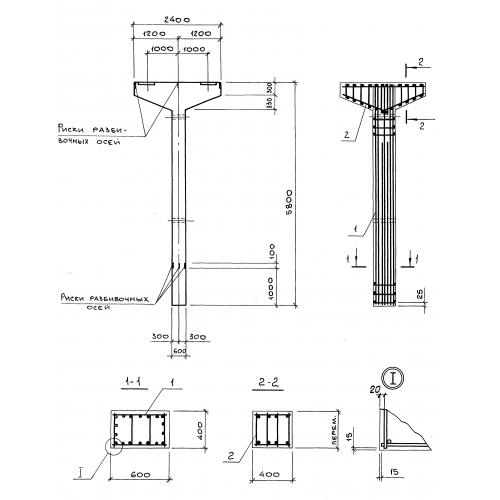
К 8

Чертеж изделия:
Характеристики изделия:
ПараметрЗначение
длина5800 мм
ширина2400 мм
высота600 мм
вес4100 кг
серия3.016.1-17.93

К 8 Колонны по серии 3.016.1-17.93.