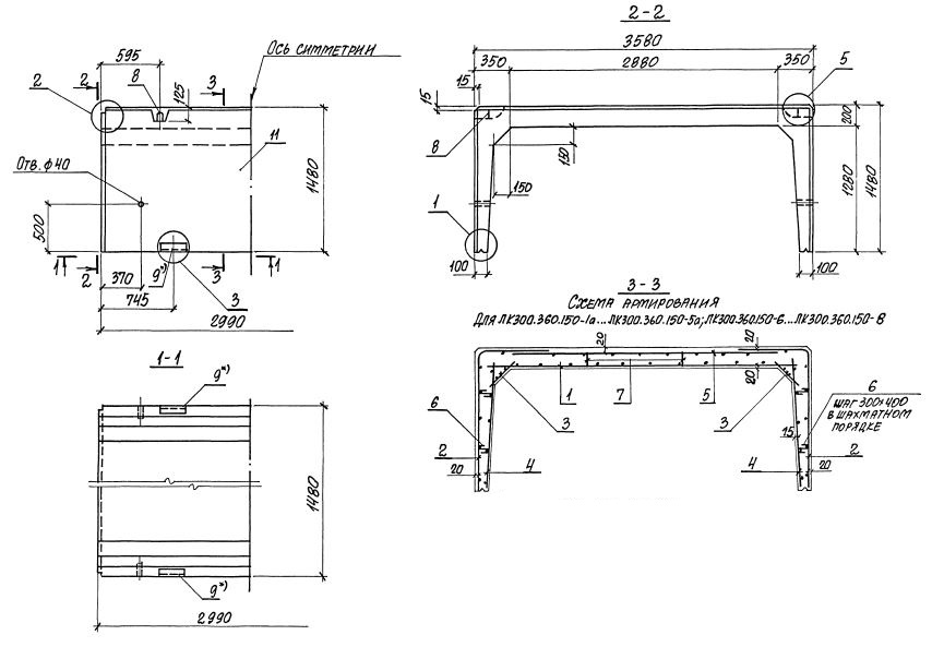
ЛК 300.360.150 лотки
Характеристики изделия:
| Параметр | Значение |
|---|---|
| длина | 2990 мм |
| ширина | 3580 мм |
| высота | 1480 мм |
| масса | 8500 кг |
| нормативный документ | Серия 3.006.1-8 |
Цена:
Рассчитать стоимостьЛК 300.360.150 Лотки каналов Серия 3.006.1-8.
| Параметр | Значение |
|---|---|
| длина | 2990 мм |
| ширина | 3580 мм |
| высота | 1480 мм |
| масса | 8500 кг |
| нормативный документ | Серия 3.006.1-8 |
ЛК 300.360.150 Лотки каналов Серия 3.006.1-8.