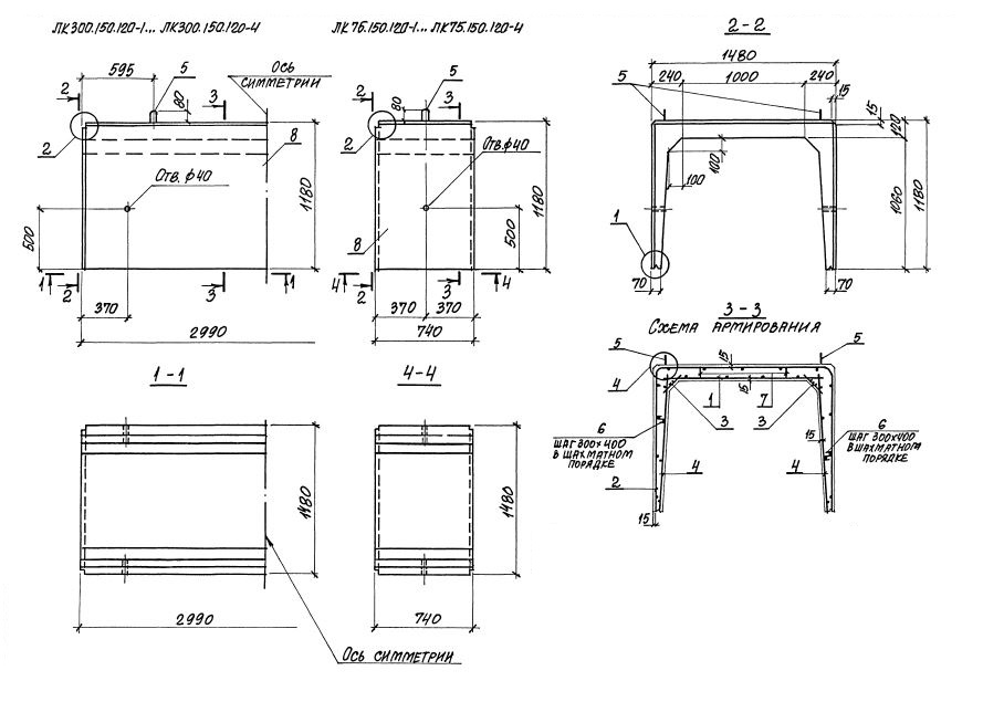
ЛК 300.150.120 лотки

Чертеж изделия:
Характеристики изделия:
ПараметрЗначение
длина2990 мм
ширина1480 мм
высота1180 мм
масса3130 кг
нормативный документСерия 3.006.1-8

ЛК 300.150.120  Лотки каналов Серия 3.006.1-8.