БСП 6.1 балки стропильные
Характеристики изделия:
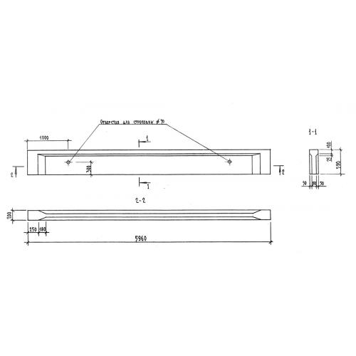
| Параметр | Значение |
|---|---|
| длина | 5960 мм |
| ширина | 200 мм |
| высота | 590 мм |
| масса | 1125 кг |
| нормативный документ | Серия 1.462.1-10/93 |
Цена:
Рассчитать стоимостьБСП 6.1 Балки стропильные с параллельными поясами Серия 1.462.1-10/93.
