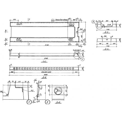
П 2

Чертеж изделия:
Характеристики изделия:
ПараметрЗначение
длина5160 мм
ширина1490 мм
высота220 мм
вес2200 кг
серия1.440-1

П 2 Плиты ребристые по серии 1.440-1.