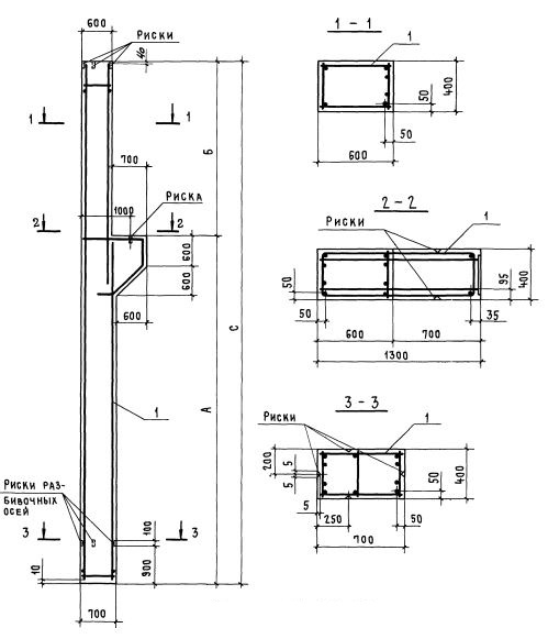
К 96

Чертеж изделия:
Характеристики изделия:
ПараметрЗначение
длина10650 мм
ширина400 мм
высота1300 мм
масса7600 кг
нормативный документСерия 1.424.1-5

К 96  Колонны крайние Серия 1.424.1-5.