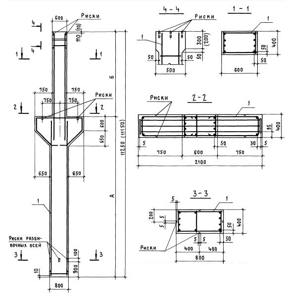
К 108

Чертеж изделия:
Характеристики изделия:
ПараметрЗначение
длина11250 мм
ширина400 мм
высота2100 мм
масса9600 кг
нормативный документСерия 1.424.1-5

К 108  Колонны средние Серия 1.424.1-5.