К 108
Характеристики изделия:
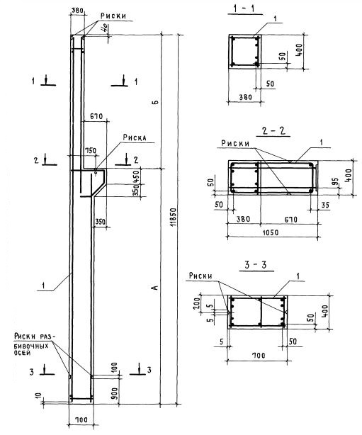
| Параметр | Значение |
|---|---|
| длина | 11850 мм |
| ширина | 400 мм |
| высота | 1050 мм |
| масса | 7600 кг |
| нормативный документ | Серия 1.424.1-5 |
Цена:
Рассчитать стоимостьК 108 Колонны крайние Серия 1.424.1-5.
| Параметр | Значение |
|---|---|
| длина | 11850 мм |
| ширина | 400 мм |
| высота | 1050 мм |
| масса | 7600 кг |
| нормативный документ | Серия 1.424.1-5 |
К 108 Колонны крайние Серия 1.424.1-5.