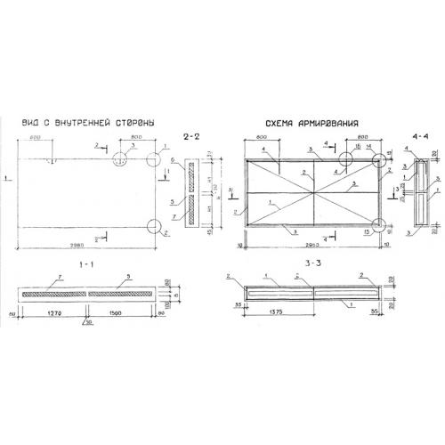
ПСТ 30.15.2.5 панели стеновые
Характеристики изделия:
| Параметр | Значение |
|---|---|
| длина | 2980 мм |
| ширина | 250 мм |
| высота | 1485 мм |
| масса | 1630 кг |
| нормативный документ | Серия 1.232.1-7 |
Цена:
Рассчитать стоимостьПСТ 30.15.2.5 Панели стеновые трехслойные (рядовые) Серия 1.232.1-7.
