ПВ 57.9.40
Характеристики изделия:
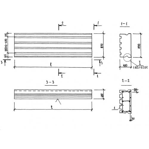
| Параметр | Значение |
|---|---|
| длина | 5670 мм |
| ширина | 890 мм |
| высота | 400 мм |
| вес | 1420 кг |
| серия | 1.165.1-10 |
Цена:
Рассчитать стоимостьПВ 57.9.40 Вентилируемые панели покрытия по серии 1.165.1-10.
| Параметр | Значение |
|---|---|
| длина | 5670 мм |
| ширина | 890 мм |
| высота | 400 мм |
| вес | 1420 кг |
| серия | 1.165.1-10 |
ПВ 57.9.40 Вентилируемые панели покрытия по серии 1.165.1-10.
