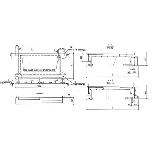
2ЛП 22.15
Характеристики изделия:
| Параметр | Значение |
|---|---|
| длина | 2480 мм |
| ширина | 1600 мм |
| высота | 320 мм |
| масса | 1035 кг |
| нормативный документ | Серия 1.152.1-8 |
Цена:
Рассчитать стоимость2ЛП 22.15 Лестничные площадки ребристые Серия 1.152.1-8.
| Параметр | Значение |
|---|---|
| длина | 2480 мм |
| ширина | 1600 мм |
| высота | 320 мм |
| масса | 1035 кг |
| нормативный документ | Серия 1.152.1-8 |
2ЛП 22.15 Лестничные площадки ребристые Серия 1.152.1-8.
