П 30.9.22
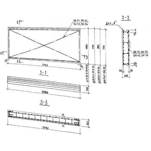
Характеристики изделия:
| Параметр | Значение |
|---|---|
| длина | 2980 мм |
| ширина | 890 мм |
| высота | 220 мм |
| вес | 725 кг |
| серия | 1.143-4 |
Цена:
Рассчитать стоимостьП 30.9.22 Панели перекрытия сплошные по серии 1.143-4.
| Параметр | Значение |
|---|---|
| длина | 2980 мм |
| ширина | 890 мм |
| высота | 220 мм |
| вес | 725 кг |
| серия | 1.143-4 |
П 30.9.22 Панели перекрытия сплошные по серии 1.143-4.
