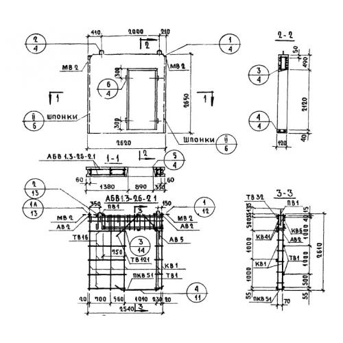
В1.3-26.27.12-2.4

Чертеж изделия:
Характеристики изделия:
ПараметрЗначение
длина2620 мм
ширина120 мм
высота2650 мм
масса1500 кг
нормативный документСерия 1.131-1

В1.3-26.27.12-2.4    Внутренние стеновые панели   (Серия 1.131-1).