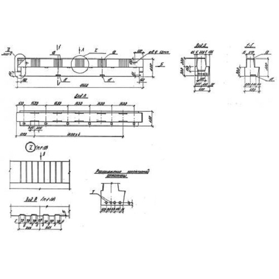
РОР 6-86 ригели

Чертеж изделия:
Характеристики изделия:
ПараметрЗначение
длина8560 мм
ширина490 мм
высота600 мм
масса5100 кг
нормативный документСерия 1.020-1/87

РОР 6.86  Ригели однополочные под ребристые плиты Серия 1.020-1/87.