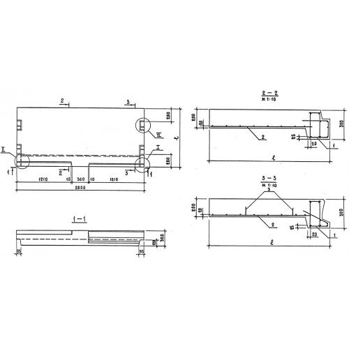
1ЛП 28.13 лестничные площадки плоские

Чертеж изделия:
Характеристики изделия:
ПараметрЗначение
длина2800 мм
ширина1300 мм
высота320 мм
масса1910 кг
нормативный документГОСТ 9818-85

1ЛП 28.13  Лестничные площадки плоские ГОСТ 9818-85.