С 7-30

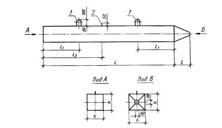
Чертеж изделия:
Характеристики изделия:
ПараметрЗначение
длина7000 мм
ширина300 мм
высота300 мм
масса1600 кг
нормативный документГОСТ 19804.1-79

С 7-30  Сваи забивные сплошного квадратного сечения с ненапрягаемой продольной арматурой ГОСТ 19804.1-79.