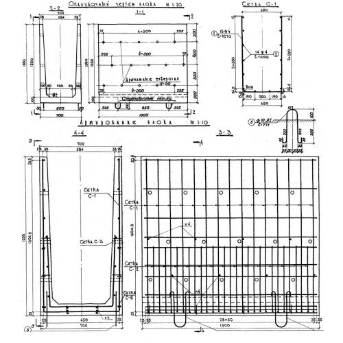
МПЛ 1.25 Лоток тип II

Чертеж изделия:
Характеристики изделия:
ПараметрЗначение
длина1500 мм
ширина700 мм
высота1350 мм
масса1000 кг
нормативный документАльбом № 984

Лотки  междупутные МПЛ 1.25 тип II, Альбом № 984.

Применяются лотки МПЛ 1.25 для пропуска воды вдоль железнодорожных путей. Лотки этого типа как правило укладываются в междупутьях с пониженных отметок при пилообразном профиле земляного полотна и верха балластного слоя станционных парков.

МАРКИРОВКА

Маркировка бетонных блоков МПЛ 1.25 состоит из буквенно-цифровых групп:

МПЛ бетонный блок междупутного лотка

1,25 глубина лотка в метрах